母一人の二世帯住宅を完全分離する間取りの考え方 完全分離型二世帯住宅は、2軒の家を縦、横、背中合わせに並べたような住宅です。上下に別けるタイプと、縦に別けるタイプがあります。 上下に別けるタイプの完全分離型二世帯住宅 縦に並べる場合は、1階と2階に世帯を分けします50坪南玄関の二世帯住宅の間取り 参考の間取りは50坪の二世帯住宅です。 1階が2ldkで親世帯、2階が3ldkの子供世帯の想定で 玄関を共有して上下階ですみわけしていくイメージの間取り。 1階のリビングが大きめで、家族があつまるときは1階のイメージ 2階 の完全分離型の二世帯住宅になります。 吹き抜けと窓の配置で、狭い土地でも風通しがよく光もたっぷり入ります。 趣味の時間と家族の時間を作れる間取り 出典:中鉢建設株式会社 趣味の時間と家族との時間が作れる、18坪の間取り。 1階では、奥行きのある収納と、3帖はある大きな
完全分離型二世帯住宅の間取り実例 30坪 40坪 50坪 60坪を上下左右型ごとにご紹介 注文住宅情報サイト イエティ
メゾネット 完全分離 二世帯住宅 間取り
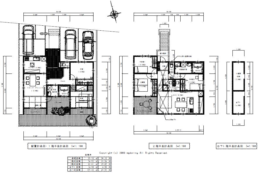
メゾネット 完全分離 二世帯住宅 間取り- 二世帯住宅の間取りプランの種類 実際に二世帯住宅を建てることになった際の間取りのプランにはどのようなものがあるのでしょうか、参考例を見てみます。 完全分離型 玄関、リビング、キッチン、浴室などの 設備や居住空間がすべて分かれています50坪完全分離型2世帯住宅の間取り図2LDK3LDK 土地の大きさ:開口8m 奥行きm 接道:東道路 用途地域:一種住居 壁面後退: 階数:2階建て 建物の規模:50坪(要望は60坪) 必要な部屋: 建物は2階建て60坪くらいで1F、2Fでの



00万円以下で2世帯住宅 資金計画に関する家づくり相談 Sumika 建築家 工務店との家づくりを無料でサポート
二世帯住宅は、大まかに以下のような3つの間取りの種類があります。 それぞれのメリット・デメリットを知り、家づくりにお役立てください。 11完全同居型の間取り 家族を構成する人たちそれぞれに必要な 寝室を設け、それ以外は全て共用 するのが玄関共有の二世帯住宅の間取り 参考の間取りは48坪の玄関のみ共有の二世帯住宅です。 東道路の想定ですが、北道路や南道路でも使用可能です。 1階は親世帯、2階が子供世帯の想定で、 リビングダイニングキッチン、洗面脱衣、バスルーム、トイレは完全二世帯の間取り一覧 madree(マドリー)にいただいたご依頼をもとに、全国の建築家・設計士さんがひとつひとつ作成した55件の間取り案。毎日更新中! 68坪;
二世帯住宅の間取り(50坪前後) プライバシーを守りながら、お互いの気配を感じる間取り 子供たちも思春期なので、 普段はお互いにプライベートな空間で過ごしたいのですが、全く両親の様子がわからないのは不安 です。 生活音が聞こえ、気配が感じ 上下で完全分離 こちらは56坪南玄関の、完全分離型の二世帯住宅プラン。 玄関は2つに分かれていますが、内部で行き来は可能になっています。 親世帯は右の玄関から入り、148帖のLDKと64帖の主寝室。 他にも主寝室と同じ大きさの和室があり、来客用と(50坪完全分離二世帯住宅間取りシュミレーション) 敷地の大きさ:南道路 115m×m 建物の規模: 50坪 1ldk3ldk 2階建て 完全分離 二世帯住宅 必要な部屋: 1階 親世帯 玄関ホール 3畳 土間収納 2畳 シューズクローク リビングダイニングキッチン 16畳 ベッドルーム 9畳 ウォークインクロゼット
似ている間取り 風通りの良い開放的なセンターリビングの、端正な和風2階建住宅 詳細へ 動線を簡略化させることによりゆとりを確保した、完全分離型の2世帯住宅 詳細へ それぞれのldの居住性を優先した、完全分離型2世帯住宅 詳細へ > 二世帯住宅の3つの間取りタイプってなに? 各世帯の"距離感"がポイント! 間取り 二世帯住宅 完全分離 完全同居 部分共有 施工主様が二世帯住宅を建築する上で最も悩まれるポイントである"間取り"。 今回は二世帯住宅の間取りにおける3つの 二世帯住宅の間取りを考える際に、一般的なのは「共有タイプ」か「分離タイプ」かという話と、空間や設備(玄関やキッチンなど)の数を決めて、間取りを決定することが多いようです。こうした観点で考えると二世帯住宅は 3 つのタイプに分けて考えることができそうです。 21 完全



Solution1 賃貸併用住宅 資産価値創造プログラム トチカツ セキスイハイム



費用を抑えて二世帯住宅を建てるには 補助金や間取りをご紹介 愛知県 岐阜県で新築 注文住宅を建てる新和建設のブログ
似ている間取り コンパクトながらゆったりとしたldを持つ、メゾネットタイプの賃貸併用住宅 詳細へ 高齢者同居を考慮した間取りと、明るい居間が特徴の「蔵のある家」 詳細へ センターリビングのコンセプトを生かした完全分離型2世帯住宅 詳細へよく見られている間取り集 もっと見る 蔵のある家編 58 plans; 今回は、二世帯住宅の種類と間取り、二世帯住宅で使える補助金と減税制度についてご紹介します! もくじ 1二世帯住宅の種類と間取り 完全同居タイプ;



標準仕様でこだわりを叶えた 充実のメゾネット型二世帯住宅 アイ工務店



検索結果一覧 間取り集500プラン あたりまえ の間取り集 ミサワホーム
二世帯住宅を新築されたお客様の声 CUSTOMER'S VOICE 三菱地所ホームで二世帯住宅を新築された お客様の声をご紹介します。 間取りタイプ 1階親世帯、2階子世帯上下分離、 部分共有タイプ それぞれの生活時間帯が違うので、上下分離にすればお互いに気完全分離型二世帯住宅の間取りや費用におけるメリット・デメリット、お得な設計プランを建築事例と合わせてお話しましょう。 Contents 1 1.暮らしが違うからこそ完全分離型二世帯住宅がいい!~3タイプと費用の違い;完全分離・独立型 二世帯住宅 間取りプラン。52坪・4ldkの二世帯住宅 完全分離・独立型 間取りプランを紹介。完全分離型の二世帯住宅は、上下分離・左右分離とすべての生活空間を二世帯ごとに独立させる間取りを採用するプランが人気・おすすめです



二世帯住宅の種類とは 同居のためのポイントと施工事例をご紹介します Reco Blog



完全分離型二世帯住宅の間取り実例 30坪 40坪 50坪 60坪を上下左右型ごとにご紹介 注文住宅情報サイト イエティ
中庭のある二世帯住宅の間取り図 敷地の大きさ:15M×12M 南道路 建物の規模:47坪 必要な部屋: 1階 玄関ホール 3畳 階段室 3畳 親世帯 LDK 18畳 パントリー収納 2畳 洗面室 2畳 脱衣室 2畳 浴室完全分離型二世帯住宅の間取りについて、あなたに知って欲しいことは4つ。 POINT 完全分離型の二世帯住宅は、デメリットも多い 「左右割り」の完全分離型にすると、建築費用はほぼ2件分 「上下割り」の完全分離型は、音の響きに注意 完全分離型を似ている間取り l字型のプランニングにより、各世帯の採光を考慮した「蔵のある家」 詳細へ ゆとりのルーフバルコニーで自然を楽しめる完全分離型2世帯3階建住宅 詳細へ 存在感あふれる外観と、シンプルなプランを同時に実現した3階建住宅 詳細へ



二世帯住宅の9つの成功ポイントとは 二世帯住宅の間取り



先輩たちに聞く 二世帯住宅の費用相場とメリット デメリット My Home Story スーモカウンター注文住宅



親子で助け合う これからの二世帯住宅の暮らし 札幌 リビングワーク



おしゃれ



親子で助け合う これからの二世帯住宅の暮らし 札幌 リビングワーク



メゾネットスタイルの二世帯住宅 一棟まるごと実例集 公式 古河林業



2



テラスでつながる完全分離の家 二世帯モデルプラン間取り図 暮らしシェア率0 クレバinfo くらし楽しく快適に賢い住まいのヒント



H Sgs 横浜の3階建て完全分離型二世帯住宅 間取り図 P I E Architecture Interior Design



完全分離型二世帯住宅間取り 左右 の画像検索結果 二世帯住宅 間取り 二世帯住宅 住宅 間取り



費用を抑えて二世帯住宅を建てるには 補助金や間取りをご紹介 愛知県 岐阜県で新築 注文住宅を建てる新和建設のブログ



必読 二世帯住宅に住むならメゾネット おすすめ間取り7選 二世帯住宅のトビラ



ハウスメーカー 工務店 建築家の完成事例検索結果一覧 注文住宅のハウスネットギャラリー



必読 二世帯住宅に住むならメゾネット おすすめ間取り7選 二世帯住宅のトビラ



二世帯住宅を建てたい しあわせ設計の家 株式会社ビーテック 東京都大田区 ローコスト 二世帯住宅 狭小住宅の新築 建て替え



完全分離型二世帯住宅の間取り実例 30坪 40坪 50坪 60坪を上下左右型ごとにご紹介 注文住宅情報サイト イエティ



二世帯住宅 30坪でも建てられる 後悔しないために知っておきたい間取りのコツ 住まいのお役立ち記事 二世帯住宅 間取り 二世帯住宅 間取り



00万円以下で2世帯住宅 資金計画に関する家づくり相談 Sumika 建築家 工務店との家づくりを無料でサポート



青森の住宅 完全分離型2世帯住宅 完成見学会開催 青森 新築 注文住宅 サンクリエイトホーム



間取り のアイデア 17 件 間取り 住宅 間取り 二世帯住宅 間取り



完全分離型二世帯住宅の間取り実例 30坪 40坪 50坪 60坪を上下左右型ごとにご紹介 注文住宅情報サイト イエティ



標準仕様でこだわりを叶えた 充実のメゾネット型二世帯住宅 アイ工務店



二世帯住宅 30坪でも建てられる 後悔しないために知っておきたい間取りのコツ 住まいのお役立ち記事



間取り図あり 40坪 50坪の二世帯住宅実例 完全分離 部分共有の坪数別間取りシミュレーション Fun S Life Home



1



38坪 2階建 北向き の間取り 間取り集500プラン あたりまえ の間取り集 ミサワホーム



二世帯住宅 30坪でも建てられる 後悔しないために知っておきたい間取りのコツ 住まいのお役立ち記事



2世帯住宅 間取りと図面をまとめてみるよ



二世帯住宅 30坪でも建てられる 後悔しないために知っておきたい間取りのコツ 住まいのお役立ち記事



二世帯住宅 30坪でも建てられる 後悔しないために知っておきたい間取りのコツ 住まいのお役立ち記事



完全分離型二世帯住宅 東京江戸川区の狭小住宅 二世帯住宅間取りのご提案 建て替えするならリバティホーム 注文住宅



完全分離の二世帯住宅の費用はどれくらい Fpが独自に算出しました



完全分離型二世帯住宅の間取り実例 30坪 40坪 50坪 60坪を上下左右型ごとにご紹介 注文住宅情報サイト イエティ



費用を抑えて二世帯住宅を建てるには 補助金や間取りをご紹介 愛知県 岐阜県で新築 注文住宅を建てる新和建設のブログ



二世帯住宅 完全分離



完全分離型二世帯住宅の間取り実例 30坪 40坪 50坪 60坪を上下左右型ごとにご紹介 注文住宅情報サイト イエティ



完全分離型二世帯住宅の間取り実例 30坪 40坪 50坪 60坪を上下左右型ごとにご紹介 注文住宅情報サイト イエティ



標準仕様でこだわりを叶えた 充実のメゾネット型二世帯住宅 アイ工務店



0flm4b Gf4kecm



完全分離 独立型 二世帯住宅 間取りプラン シアーズホーム 注文住宅で建てる一軒家



おすすめの二世帯住宅の間取り 30坪や三階建て 左右分離の事例 注文住宅の教科書 Fp監修の家づくりブログ



親子で助け合う これからの二世帯住宅の暮らし 札幌 リビングワーク



完全分離の2世帯住宅 間取り掲示板 E Houseの間取り



完全分離型の二世帯住宅はどんな間取り 間取り例とメリット デメリット 伊那市の不動産売却 中古住宅なら有限会社井口不動産



必読 二世帯住宅に住むならメゾネット おすすめ間取り7選 二世帯住宅のトビラ



二世帯住宅に必要な土地の広さはどのくらい 詳しく解説



必読 二世帯住宅に住むならメゾネット おすすめ間取り7選 二世帯住宅のトビラ



費用を抑えて二世帯住宅を建てるには 補助金や間取りをご紹介 愛知県 岐阜県で新築 注文住宅を建てる新和建設のブログ



2世帯住宅を考える 間取りと図面をまとめてみるよ



快適おすすめな二世帯住宅の間取り図を徹底紹介 坪数別に詳しく紹介 工具男子新聞



完全分離の二世帯住宅の費用はどれくらい Fpが独自に算出しました



先輩たちに聞く 二世帯住宅の費用相場とメリット デメリット My Home Story スーモカウンター注文住宅



3 2世帯住宅 2 完全分離型 A 上下階分離外階段方式 注文住宅のハウスネットギャラリー



V型の2世帯住宅間取り図 3階建て完全分離型 P I E Architecture Interior Design



間取り のアイデア 17 件 間取り 住宅 間取り 二世帯住宅 間取り



必読 二世帯住宅に住むならメゾネット おすすめ間取り7選 二世帯住宅のトビラ



アイフルホームで建てた家の建築例 施工例の検索 アイフルホーム ナビ



二世帯住宅の家づくりってどんな間取りの家 仙台の住宅相談 コンサルタント パートナーズ ライフプランニング 1級fpプランナーによる注文住宅 戸建ての相談



二世帯住宅を建てたい しあわせ設計の家 ビーテック 大田区の狭小 二世帯住宅専門の新築 建て替え



完全分離型二世帯住宅おすすめ間取り集 左右割りや30坪に注意 一条工務店とイツキのブログ



二世帯住宅の9つの成功ポイントとは 二世帯住宅の間取り



完全分離型二世帯住宅の間取り実例 30坪 40坪 50坪 60坪を上下左右型ごとにご紹介 注文住宅情報サイト イエティ



先輩たちに聞く 二世帯住宅の費用相場とメリット デメリット My Home Story スーモカウンター注文住宅



必読 二世帯住宅に住むならメゾネット おすすめ間取り7選 二世帯住宅のトビラ



検索結果一覧 間取り集500プラン あたりまえ の間取り集 ミサワホーム



完全分離型二世帯住宅のメリットやデメリットを徹底解説 事前に知るべきポイントはこれ 重量木骨の家



必読 二世帯住宅に住むならメゾネット おすすめ間取り7選 二世帯住宅のトビラ



標準仕様でこだわりを叶えた 充実のメゾネット型二世帯住宅 アイ工務店



完全分離型二世帯住宅おすすめ間取り集 左右割りや30坪に注意 一条工務店とイツキのブログ



間取り図あり 40坪 50坪の二世帯住宅実例 完全分離 部分共有の坪数別間取りシミュレーション Fun S Life Home



間取り のアイデア 17 件 間取り 住宅 間取り 二世帯住宅 間取り



必読 二世帯住宅に住むならメゾネット おすすめ間取り7選 二世帯住宅のトビラ



完全分離型二世帯住宅の間取り実例 30坪 40坪 50坪 60坪を上下左右型ごとにご紹介 注文住宅情報サイト イエティ



完全分離型二世帯住宅リノベマンション カテリーナ梅ヶ丘 1階 他 物件詳細 1030z Goo 住宅 不動産 中古マンションの購入



58坪 2階建 北向き の間取り 間取り集500プラン あたりまえ の間取り集 ミサワホーム



二世帯住宅の不安を解消 完全分離型の快適な住まい作り ヘーベルハウス



おすすめの二世帯住宅の間取り 30坪や三階建て 左右分離の事例 注文住宅の教科書 Fp監修の家づくりブログ



完全分離の二世帯住宅の費用はどれくらい Fpが独自に算出しました



完全分離型二世帯住宅おすすめ間取り集 左右割りや30坪に注意 一条工務店とイツキのブログ



先輩たちに聞く 二世帯住宅の費用相場とメリット デメリット My Home Story スーモカウンター注文住宅



Dual Stage 宗像市の建築会社 カスタムハウジング宗像



標準仕様でこだわりを叶えた 充実のメゾネット型二世帯住宅 アイ工務店



完全分離型二世帯住宅の間取り実例 30坪 40坪 50坪 60坪を上下左右型ごとにご紹介 注文住宅情報サイト イエティ



完全分離 独立型 二世帯住宅 間取りプラン シアーズホーム 注文住宅で建てる一軒家



必読 二世帯住宅に住むならメゾネット おすすめ間取り7選 二世帯住宅のトビラ



標準仕様でこだわりを叶えた 充実のメゾネット型二世帯住宅 アイ工務店



Suumo 完全分離型二世帯住宅リノベマンション カテリーナ梅ヶ丘 中古マンション物件情報



標準仕様でこだわりを叶えた 充実のメゾネット型二世帯住宅 アイ工務店



完全分離の二世帯住宅の費用はどれくらい Fpが独自に算出しました



二世帯住宅の費用は 予算はどのくらい準備しておけばよいのか 二世帯住宅の種類と共に解説します 富士市の工務店 注文住宅 健康省エネ住宅 は空間工房lohas



おすすめの二世帯住宅の間取り 30坪や三階建て 左右分離の事例 注文住宅の教科書 Fp監修の家づくりブログ



完全分離型二世帯住宅の間取り実例 30坪 40坪 50坪 60坪を上下左右型ごとにご紹介 注文住宅情報サイト イエティ



完全分離型の二世帯住宅がいいって本当 そのメリット デメリットとは 愛知県 岐阜県で新築 注文住宅を建てる新和建設のブログ



二世帯住宅 全国工務店グランプリ日本一のエコアハウス 千歳 恵庭 札幌の注文住宅



完全分離型二世帯住宅のメリットやデメリットを徹底解説 事前に知るべきポイントはこれ 重量木骨の家



1



費用を抑えて二世帯住宅を建てるには 補助金や間取りをご紹介 愛知県 岐阜県で新築 注文住宅を建てる新和建設のブログ



必読 二世帯住宅に住むならメゾネット おすすめ間取り7選 二世帯住宅のトビラ


0 件のコメント:
コメントを投稿